
3,006 SF
$1,700,000

Lot 1 - Home Rendering

First Floor Plan

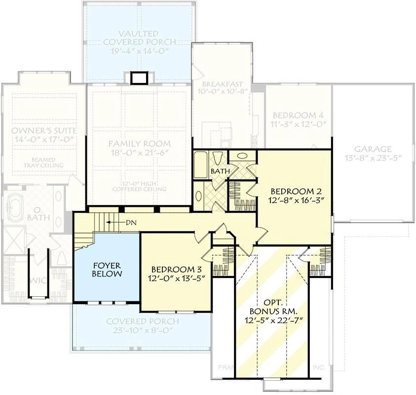
Second Floor Plan
Winnwood Farm
We use cookies to analyze website traffic and optimize your website experience. By accepting our use of cookies, your data will be aggregated with all other user data.

Please contact us with any questions and/or to schedule an appointment.